Die Apartments
KOMFORT, DER INKLUSIVE IST
Damit Du Dich vom ersten Moment an rundum wohlfühlst:
Eine Ausstattung, die keine Wünsche offenlässt –
hochwertig und durchdacht bis ins Detail:
- Schlüsselboxen für den komfortablen und flexiblen Self-Check-In und -Out
- Anreise ab 15.00 Uhr, Abreise bis 11.00 Uhr
- Kostenfreier PKW-Stellplatz direkt an der Unterkunft
Weiterlesen
- Alle Apartments mit eigenem Eingang
- Großzügige Terrasse mit Gartenblick oder Balkon mit Aussicht
- Nichtraucher-Apartments
- Keine Haustiere erlaubt
- Kostenfreies WLAN
- Echtholzparkett
- Heller Wohnbereich mit gemütlichem Sofa und 40“-LED-TV
- Tisch mit ausreichend Platz zum Essen und Arbeiten
- Moderne, voll ausgestattete Küchenzeile mit Herd, Backofen, Spülmaschine und Kühlschrank
- Wasserkocher und Nespresso-Kaffeemaschine
- Ruhiges Schlafzimmer mit 180 cm breitem Doppelbett
- Großzügiges Tageslichtbad mit begehbarer Dusche, WC und Haartrockner
- Apartments Nr. 1 und 2: Zusätzlich Badewanne und separates Gäste-WC
- Bettwäsche, Handtücher und Pflegeprodukte inklusive
- Waschmaschine, Bügeleisen und -brett im gemeinschaftlichen Serviceraum
- Wöchentlicher Zimmer- und Wäscheservice
- Endreinigung inklusive
















Apartment Nr. 1
Großzügiges Apartment mit Balkon und herrlichem Panoramablick. Wohnkomfort auf 62 m² mit offenem Wohn- und Essbereich, voll ausgestatteter Küche, Schlafzimmer mit breitem Doppelbett, Gäste-WC, Tageslichtbad mit zwei Waschbecken, WC, Badewanne und begehbarer Dusche.
















Apartment Nr. 2
Großzügiges Apartment mit Balkon und sehr schöner Aussicht. Wohnkomfort auf 60 m² mit offenem Wohn- und Essbereich, voll ausgestatteter Küche, Schlafzimmer mit breitem Doppelbett, Gäste-WC, Tageslichtbad mit zwei Waschbecken, WC, Badewanne und begehbarer Dusche.
















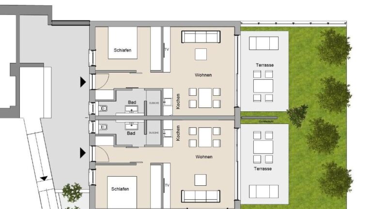
Apartment Nr. 3
Modernes und helles Apartment mit großer Terrasse und Blick in den Garten. Wohnkomfort auf 52 m² mit offenem Wohn- und Essbereich, voll ausgestatteter Küche, Schlafzimmer mit breitem Doppelbett, Tageslichtbad mit Waschbecken, WC und begehbarer Dusche.
















Apartment Nr. 4
Modernes und helles Apartment mit großer Terrasse und Blick in den Garten. Wohnkomfort auf 52 m² mit offenem Wohn- und Essbereich, voll ausgestatteter Küche, Schlafzimmer mit breitem Doppelbett, Tageslichtbad mit Waschbecken, WC und begehbarer Dusche.